En 1872, un grand projet d’urbanisme de la municipalité de Lille permet le développement d’un quartier universitaire dans le secteur Saint-Michel. Ces bâtiments universitaires aux architectures académiques sont pour la plupart inaugurés entre 1892 et 1894.
L’architecte Carlos Batteau a pour mission d’édifier «140 salles de destinations différentes, sans compter les vestiaires, les salles de collections, les sous-sols, les hangars, les chenils et autres locaux analogues ».
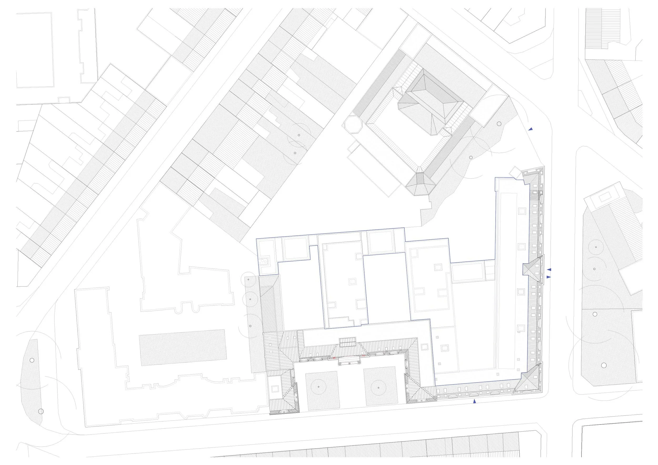
L’ensemble de la faculté était organisé à l’origine autour de cours intérieures fermées. Elle a subi de nombreuses modifications au fil du temps. Une grande partie des bâtiments en cœur de parcelle fut démolie ou remplacée. Les bâtiments sur les rues Jean-Bart et Jeanne d’Arc sont restés dans leur configuration originelle.